Congress has cut federal funding for public media — a $3.4 million loss for LAist. We count on readers like you to protect our nonprofit newsroom. Become a monthly member and sustain local journalism.
Here’s How To Comment On Proposed Billion Dollar Changes To The California State Capitol

The state has again opened public comment on a controversial $1 billion-plus facelift of the California state Capitol following a court order.
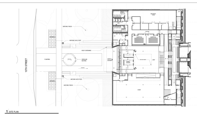
The updated plans show the state still intends to demolish and replace the existing annex building – which housed offices for state lawmakers and the governor until they moved into a temporary space in late 2021 — with a larger glass building. The plans also still include a visitor center beneath the west side of the state Capitol and an underground parking garage on the east side.
Except to allow access to the new structures, no changes are planned for the historic west wing of the Capitol, which includes the rotunda and chambers for the Senate and Assembly.
A Sacramento appeals court ruled in December that lawmakers in charge of the project circumvented necessary public feedback on the changes, including placement of the visitor center and the design of the new annex.
The revamp of the Capitol’s accessory structures has been in the works since 2016 but has faced delays due to the pandemic and lawsuits. According to the new plans, construction will likely continue around the state Capitol until at least 2026.
Assembly member James Ramos (D-San Bernardino) and Sen. John Laird (D-Santa Cruz), who oversee the project as chairs of the Legislature’s Joint Rules Committee, did not respond to requests for comment. A spokesperson for the Department of General Services also declined to comment.
Dick Cowan, a former chairperson of the Historic State Capitol Commission and leading opponent of the project, said he’s disappointed the revised plans did not include analysis of alternative locations for the visitor center or parking garage. But he said the additional window for public comment is a good step.
“I'm a little optimistic that we can, through this process, maybe still shape and better the project,” Cowan said in an interview.
Annex design
The December ruling requires the state to collect feedback on the design of the new annex, which was decided after the first public comment periods closed.
The plans call for a glass structure in a “double-T” shape. The glass could be coated in white ceramic frits, which the document explains would control heat, glare, and would help integrate the annex into the historic Capitol.
Pleating in the glass would give the appearance of columns, another nod to the domed Capitol building.
The new building would provide about 525,000 square feet of space, compared to the 325,000 square feet in the existing building. That would allow larger hearing rooms, conference rooms and more consistent office spaces, according to the document.
The new annex would also align the second and third floors with those of the main Capitol building, though an “additional” level would exist between the second and third floors.

Cowan, who was involved with the lawsuits against the project, said a glass building raises security concerns and is incongruent with the historic Capitol.
“I don't think the glass is compatible, period,” he said. “It's easy to make a modern building compatible with a historic building.”
Visitor center
The Legislature still wants to add a visitor center beneath the west steps of the historic state capitol, but the revised plans show it would be 10,000 square-feet smaller than originally proposed. The path to enter the visitor center also changed from looped ramps to a straight, sloped ramp from 10th Street to the entrance, along with steps to the lower plaza from the north and south.

The visitor center has raised questions about whether the Capitol’s west side would be able to accommodate large protests and gatherings when the project is complete.
Cowan and others want the state to install the visitor center beneath the new annex building, preserving the Capitol’s west plaza as a space for large gatherings.
Assembly member Josh Hoover (R-Folsom) had proposed legislation that would move the visitor center to the east side. He said he was notified Thursday it would not be moved forward.
“What happens in these public hearing opportunities is going to be important,” he said, adding “the Legislature still has an opportunity apart from my bill to make some changes.”
New parking garage
The state plans to continue with building a new underground parking garage, but the location and size of the structure have changed since the initial public comment periods in 2019 and 2020. Originally slated for the south side of the Capitol with a capacity for 200 vehicles, a 150-car garage is now planned for the east side beneath Capitol Park. Two entrances to the north and south would align with 12th Street.
It’s unclear whether the garage would be open to the public or reserved for lawmakers and state employees.
How to comment on the plans
The state is holding two public meetings on the project.
- An informational workshop is scheduled for Tuesday, April 18th from 4:30-6:30 p.m. at the Tsakopoulos Library Galleria, 828 I Street in Sacramento.
- A public hearing to receive feedback will take place at the same location on Tuesday, May 16 from 4:30-6:30 p.m.
Residents can also send written comments to environmental@dgs.ca.gov or mail to:
Stephanie Coleman, Senior Environmental Planner
Department of General Services, Environmental Services Section
P.O. Box 989052, West Sacramento, CA 95798
Comments will be accepted until 5 p.m. May 22, 2023.
As Editor-in-Chief of our newsroom, I’m extremely proud of the work our top-notch journalists are doing here at LAist. We’re doing more hard-hitting watchdog journalism than ever before — powerful reporting on the economy, elections, climate and the homelessness crisis that is making a difference in your lives. At the same time, it’s never been more difficult to maintain a paywall-free, independent news source that informs, inspires, and engages everyone.
Simply put, we cannot do this essential work without your help. Federal funding for public media has been clawed back by Congress and that means LAist has lost $3.4 million in federal funding over the next two years. So we’re asking for your help. LAist has been there for you and we’re asking you to be here for us.
We rely on donations from readers like you to stay independent, which keeps our nonprofit newsroom strong and accountable to you.
No matter where you stand on the political spectrum, press freedom is at the core of keeping our nation free and fair. And as the landscape of free press changes, LAist will remain a voice you know and trust, but the amount of reader support we receive will help determine how strong of a newsroom we are going forward to cover the important news from our community.
Please take action today to support your trusted source for local news with a donation that makes sense for your budget.
Thank you for your generous support and believing in independent news.

-
Administrators say the bargaining units should be dismissed, or that they have no standing. One campus is going after the federal agency in charge of union activity.
-
The landslide is not connected to the greater Portuguese Bend landslide, city officials said.
-
Nom. Nom. Nom. The event destroyed the internet when it was first announced — and sold out in minutes.
-
The critical findings are part of long-awaited after-action report was released Thursday. It contains recommendations for increasing emergency staffing and updating old systems.
-
Diving has changed, mountain biking has been added. Here's where to watch the Olympics in person in 2028.
-
'A Great Day in the Stoke' is a free, daylong event in Orange County billed as 'the largest gathering of Black surfers in history.' The fourth annual festival is set for Saturday in Huntington Beach.